В историческом центре Уфы за счет сноса частного сектора будут реконструированы детсад и гимназия
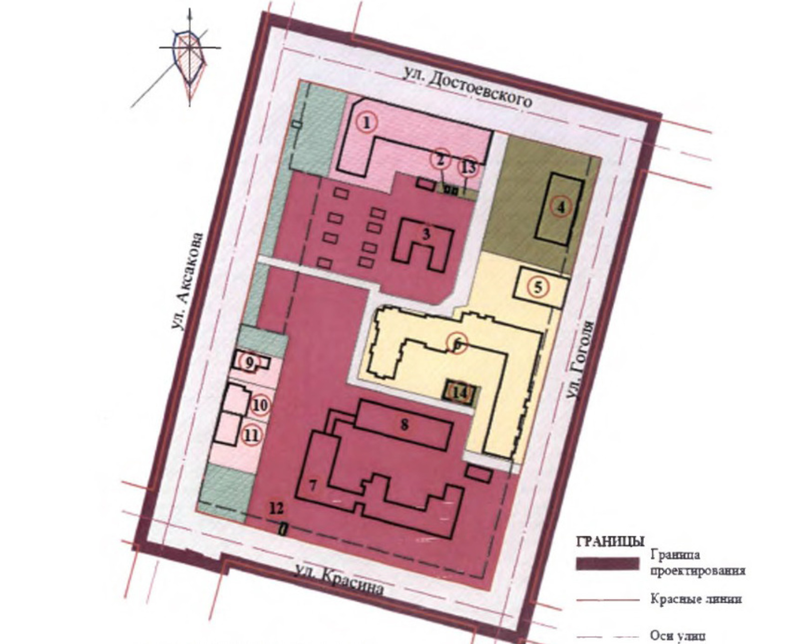
В Уфе утвержден проект планировки территории, ограниченной улицами Достоевского,Гоголя, Красина и Аксакова.
В Уфе утвержден проект планировки территории, ограниченной улицами Достоевского,Гоголя, Красина и Аксакова.
На проектируемой территории располагаются 1-2-этажные жилые дома усадебного типа, двухэтажные жилые дома, 8-12-этажный жилой дом со встроено-пристроенными предприятиями обслуживания. Кроме того, вдоль улицы Аксакова расположены объекты культурного наследия.
Проектом предлагается сохранение объектов культурного наследия с изменением функционального назначения с жилого на общественное, благоустройство территории квартала и снос жилой застройки общей площадью 2,39 тысяч квадратных метров. Размещение новой жилой застройки проектом не предусмотрено.
На месте сносимого жилья проектом предусмотрена реконструкция здания детского сад № 6 с увеличением мощности с 80 до 188 мест, а также реконструкция существующего здания гимназии №91 и строительство нового корпуса с увеличением общей вместимости с 680 до 1110 учащихся и территории учебного заведения.
Последние новости
Стальные трубы в Уфе: от нефти до дизайна — как стальные трубы вошли в нашу повседневную жизнь
От подземных магистралей до модных интерьеров — история о том, как холодный металл стал символом прогресса, надежности и современного стиля.

Школьники из Альшеевского района посетили Центризбирком республики
В Центризбиркоме республики прошел «День открытых дверей» для учащихся школы №5 села Раевский.

Управление напоминает о необходимости предоставления отчетности за 2024 год
Управление Министерства юстиции Российской Федерации по Республике Башкортостан напоминает руководителям некоммерческих организаций об обязанности предоставлять отчетность, установленную федеральным законодательством.
Потребительский кредит без боли: как не стать жертвой долговой ямы
Как взять кредит с умом и не пожалеть об этом спустя пару месяцев