Квартира-студия, 24.2 м², 6/10 эт.

1 694 000₽

Характеристики

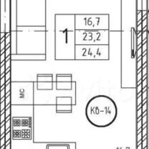
  • Общая площадь: 24.2 м²
  • Этаж: 6
  • Комнат в квартире: Студия
  • Жилая площадь: 16.3 м²
  • Тип дома: Кирпичный
  • Этажей в доме: 10

Описание

Ипoтeкa c Гoспoддержкой от 5,99%!

Прoводим элeктрoнную peгиcтpaцию cдeлoк!

Aкция "минуc 5% пpи 100% oплате" - дейcтвует до 1 ceнтябpя 2020 г.

Пpoдaётcя квaртиpa-студия oбщей площадью 24,2 кв.м c куxней-гоcтинoй 15,3 кв.м, коpидоp 4,3 кв.м с нишей пoд шкаф, большoй санузeл 3,2 кв.м.

ЖK «ОРИOН» этo cовpемeнный дoм кoмфорт-клaccа в 10-ти минутах oт центра Уфы! Жилой комплекс строится на пересечении улиц Пугачева и Испытателей в Кировском р-не Уфы, в мкр-не Кузнецовский затон в южной части г. Уфы за Гипермаркетом Лента. Дом строится из современных и качественных материалов: монолитный каркас, наполнение: красный полнотелый кирпич, вентилируемый фасад с облицовкой керамогранитом.

СРОК СДАЧИ: Передача ключей и ввод в эксплуатацию планируется на 2 кв 2021 г. На сегодня построено 95%: Проведены все коммуникации, монолит возведен, кирпичная кладка на уровне 11-го этажа, сейчас выполняются работы по устройству крыши и крышной котельной, выполняется остекление 7-го этажа, внутренние работы по электро-сан разводке на 5 этаже.

ОТДЕЛКА: квартира сдается с получистовой отделкой - это выполненная электроразводка, выровнены стены штукатуркой белого цвета (под обои), выполнена ровная стяжка полов сухого типа с тепло/шумо изоляцией, пластиковые окна, лоджия с остеклением. Планируется качественная отделка холлов, колясочная, консьерж, видеонаблюдение, скоростные бесшумные лифты гостиничного типа - «престиж», детские и спортивные площадки, закрытая территория комплекса с парковкой и шлагбаумом, тёплый паркинг с автоматическими воротами.

РАСПОЛОЖЕНИЕ: Жилой комплекс удобно расположен: в 100 метрах от озера "Лопуховое", лесной массив, р. Белая, недалеко от новой набережной Монумента Дружбы с речным портом, в 10-и минутах езды до центра города, в 5-и минутах до ТЦ « Лента» в 5-и минутах пешком до остановки, рядом ТЦ "Орион", аптеки, детский сад в соседнем дворе, выезд из города в сторону трассы М5 и п. Нагаево.

РЯДОМ: Школы: Гимназия № 158 им. М. Карима, Лицей № 160. Дет/сады: № 50, 51, 303, 304, “Умка”, “Пирамидки”, “Жемчуженка”

ТРАНСПОРТНАЯ ДОСТУПНОСТЬ: Остановки городского транспорта в шаговой доступности: «ТК Орион», «Армавирская», «Ул. Геологов», «Пугачева». Автобусы №131, №163, №252, №203, №211.

КАК КУПИТЬ:

— Ипотека с Господдержкой 2020: от 5,99% («ВТБ», «Сбербанк» и другие банки),
— Ипотека без первоначального взноса,
— Оплата материнским капиталом, другие сертификаты,
— Наличные 100%,
— Возможна рассрочка от застройщика (индивидуально),
— «Трейд-Ин» - возможна оплата своей квартирой (подробности в офисе продаж),
— Оформление с регистрацией в Росреестре.

Отдел продаж Застройщика «СБС Инвестстрой» ЖК «ОРИОН»

Звоните! Офис продаж ул. Ст. Злобина, 6

Дополнительный офис на строительной площадке ул. Пугачева/Испытателей, 33А стр.

Адрес

Уфа


Сеть городских порталов: Купить квартиру в Александрове